Las Colinas de Marbella
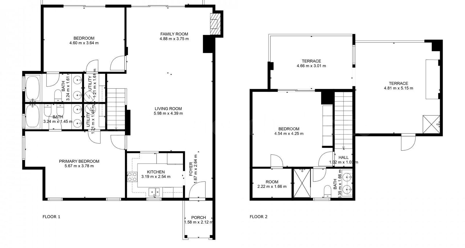
Ref. id / 360-02008PCity / BenahavisBuilt size / 241 m²Bedrooms / 3Bathrooms / 3Terrace / 84 m²
925.000 €

Duplex Penthouse for Sale with Panoramic Sea Views in Benahavis
Las Colinas de Marbella

Mortgage calculator
Number of Years
Interest %
Summary:
Monthly Payment3.905 €
Total Interest338.894 €
Total Cost1.171.394 €