La Rinconada, Nueva Andalucia
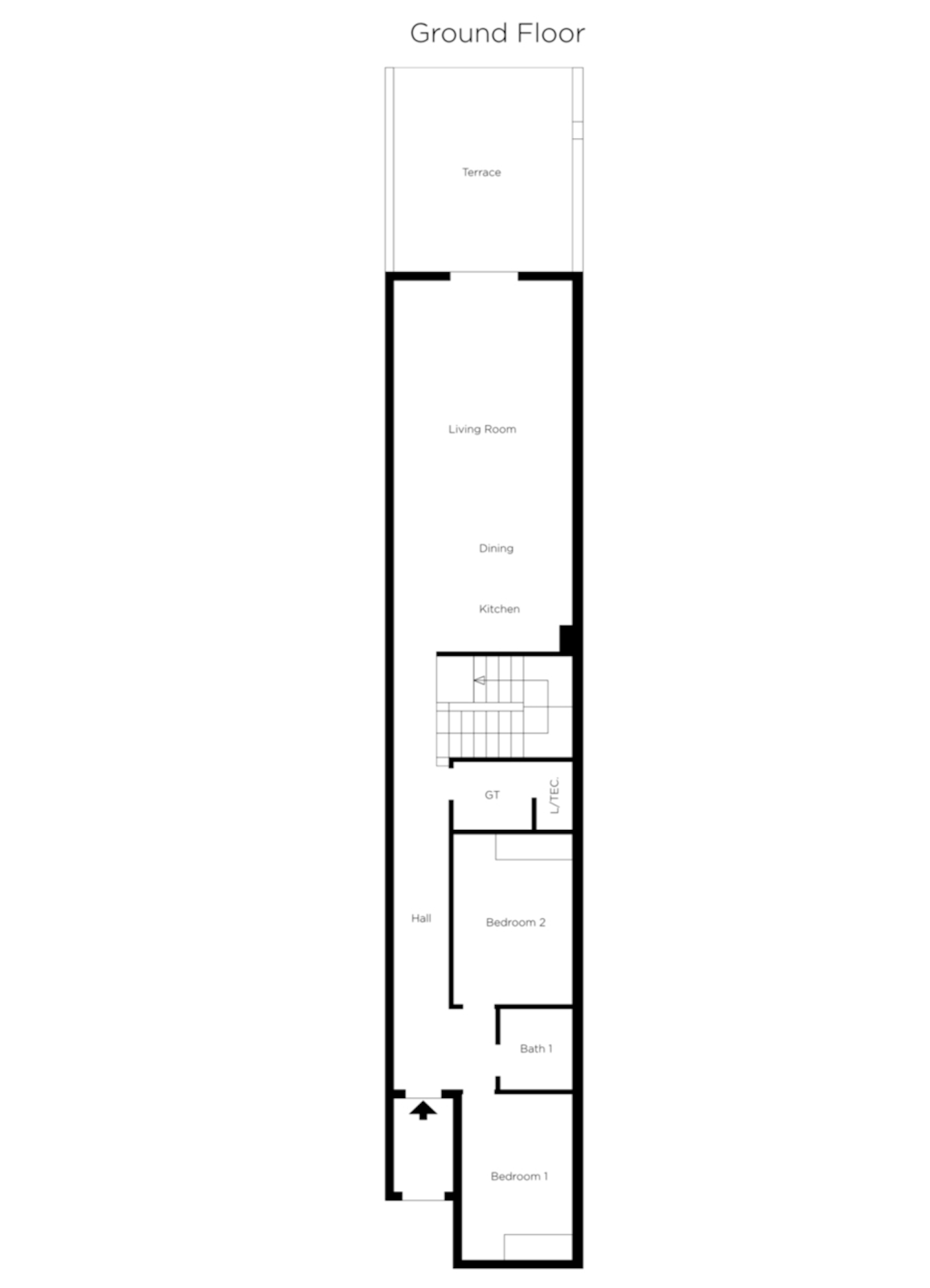
Ref. id / 360-02010PCity / MarbellaBuilt size / 230 m²Bedrooms / 4Bathrooms / 3Terrace / 60 m²
1.590.000 €

A fully refurbished 4-bedroom, spacious townhouse in The Golf Valley of Nueva Andalucia, Marbella
La Rinconada, Nueva Andalucia

Mortgage calculator
Number of Years
Interest %
Summary:
Monthly Payment6.712 €
Total Interest582.531 €
Total Cost2.013.531 €