El Paraiso, Estepona East
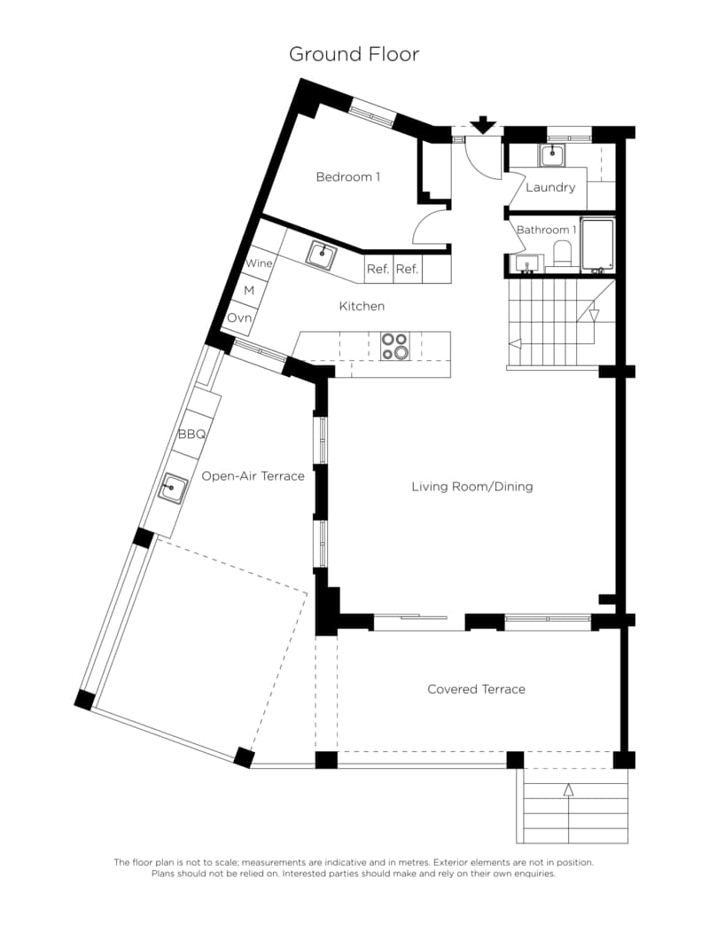
Ref. id / 360-02017PCity / EsteponaBuilt size / 253 m²Plot / 178 m²Bedrooms / 4Bathrooms / 4Terrace / 74 m²
1.350.000 €

Luxury Estepona East home, 4 beds, sea & La Concha views, terraces, pool, garage, gated.
El Paraiso, Estepona East

Mortgage calculator
Number of Years
Interest %
Summary:
Monthly Payment5.699 €
Total Interest494.602 €
Total Cost1.709.602 €