Santa Clara, Marbella East
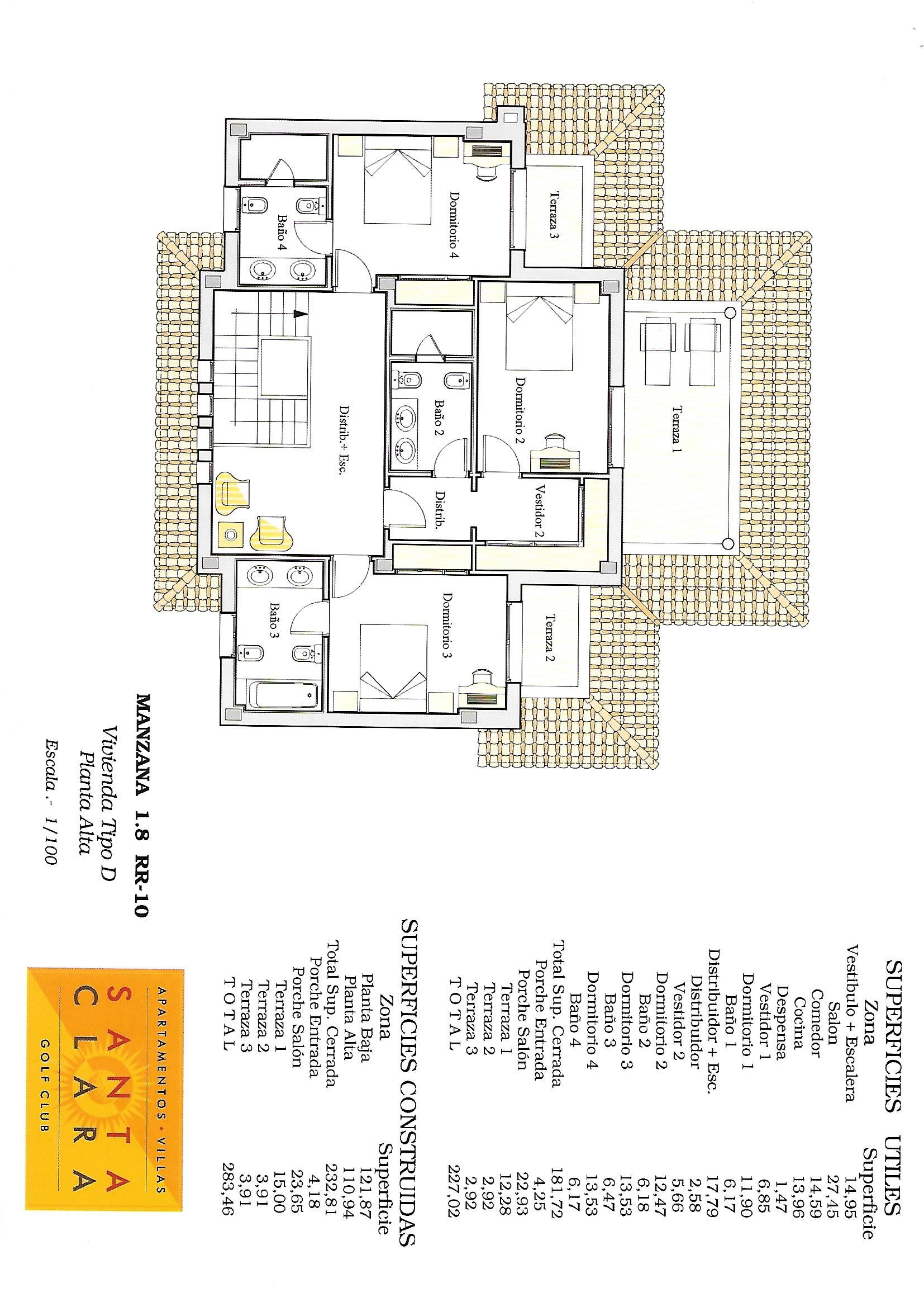
Ref. id / 360-02045PCity / MarbellaBuilt size / 301 m²Plot / 1.053 m²Bedrooms / 4Bathrooms / 4Terrace / 50 m²
1.699.000 €

Villa Arancia | Frontline Golf Villa with Sea Views in Santa Clara, Marbella
Santa Clara, Marbella Este

Mortgage calculator
Number of Years
Interest %
Summary:
Monthly Payment7.172 €
Total Interest622.465 €
Total Cost2.151.565 €