Sierra Blanca, Marbella Golden Mile
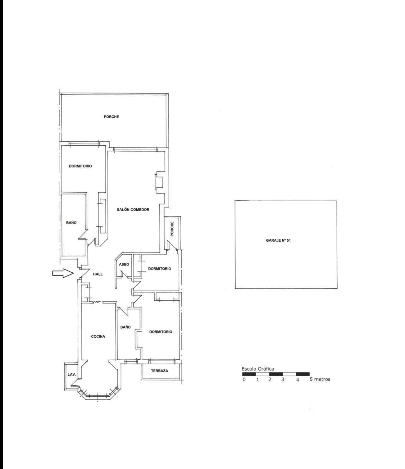
Ref. id / 360-02074PCity / MarbellaBuilt size / 186 m²Bedrooms / 3Bathrooms / 2
995.000 €

Luxury apartments for sale in Sierra Blanca
Sierra Blanca, Marbella Golden Mile

Mortgage calculator
Number of Years
Interest %
Summary:
Monthly Payment4.200 €
Total Interest364.540 €
Total Cost1.260.040 €