Impresionante villa independiente en La Mairena, Marbella Este
Descripción
Ubicada en las exuberantes y verdes colinas de La Mairena, a solo 7 minutos de las mejores playas de Marbella, esta impresionante villa independiente es la combinación perfecta de diseño moderno, entorno tranquilo y vistas panorámicas. Con una generosa superficie construida de 553 m² y situada en una amplia parcela elevada de 3.719 m², esta vivienda es un santuario ideal para quienes buscan privacidad y sofisticación.
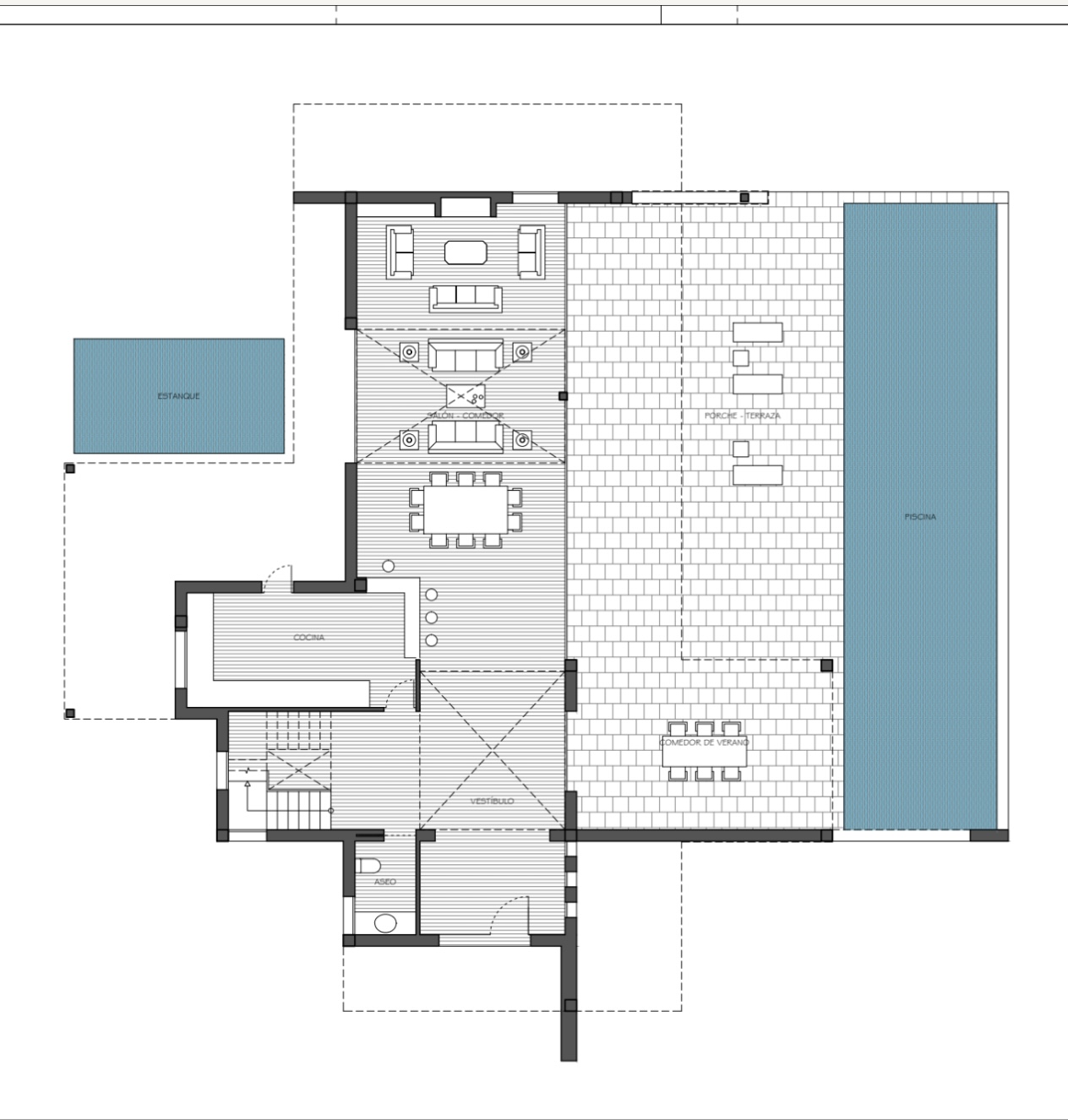
La villa es una obra maestra contemporánea, que ofrece interiores luminosos y abiertos, con líneas limpias y acabados de lujo en toda la propiedad. Su distribución en dos plantas está inundada de luz natural gracias a los amplios ventanales de suelo a techo, que no solo iluminan cada rincón del hogar, sino que también enmarcan impresionantes vistas al mar Mediterráneo, al campo circundante y a la Sierra Blanca.
Los cuatro dormitorios son espaciosos, cada uno con su propio baño en suite, lo que garantiza privacidad y comodidad tanto para los residentes como para los invitados. La suite principal, en particular, ofrece vistas espectaculares y acceso directo a una terraza privada, perfecta para disfrutar de mañanas tranquilas o atardeceres románticos.
Varias terrazas exteriores permiten disfrutar plenamente del estilo de vida andaluz, ideales para recibir invitados, cenar al aire libre o simplemente relajarse junto a la piscina con una copa en la mano. La posición elevada de la villa garantiza vistas ininterrumpidas y una constante sensación de serenidad.
La venta incluye una licencia de obra ya pagada, lo que ofrece potencial para futuras ampliaciones o personalización de la propiedad. Ya sea que busque una residencia permanente, un refugio vacacional o una inversión con alto potencial de alquiler, esta villa en La Mairena lo tiene todo.
Una oportunidad única de poseer una vivienda de diseño en una de las zonas residenciales más naturales y exclusivas de Marbella.
Especificaciones
Resumen de Inversión
Características
¿Necesita más información? Contáctenos
Aleksandra Miller
Asesor Inmobiliario
Saber más
Marbella Este
A diferencia de las zonas más concurridas del centro de Marbella, Marbella Este se caracteriza por su amplitud, serenidad y sentido de comunidad. Esto lo convierte en una de las áreas más atractivas para familias y residentes de largo plazo que buscan tranquilidad sin renunciar al fácil acceso al vibrante estilo de vida marbellí.
Con magníficas playas, buenos colegios, un entorno verde y una infraestructura bien conectada, resulta especialmente atractivo para familias que desean confort y lujo fuera del centro urbano.

Marbella Este presume de algunas de las mejores playas de la Costa del Sol, incluyendo la famosa Playa de Los Monteros y Playa de El Rosario, donde la arena dorada, las aguas cristalinas y los clubes de playa familiares crean un auténtico paraíso para la vida junto al mar. Más allá de su belleza natural, la zona alberga algunos de los mejores colegios internacionales de Marbella, lo que la hace especialmente atractiva para familias extranjeras. Además, sus campos de golf, resorts de bienestar y gastronomía de alto nivel enriquecen un estilo de vida que combina ocio con comodidad diaria.
El mercado inmobiliario es igualmente diverso, con opciones que van desde modernas villas en primera línea de playa en Los Monteros hasta elegantes apartamentos junto al golf en Río Real y amplias viviendas familiares en Elviria, atrayendo a un amplio abanico de compradores exigentes.

Estratégicamente ubicado, Marbella Este también ofrece una excelente conectividad, con rápido acceso tanto al aeropuerto de Málaga como al centro de Marbella, garantizando desplazamientos fluidos sin las congestiones de los distritos más concurridos.
Descubre en detalle las zonas de Marbella Este:
Elviria
Un animado núcleo residencial con tiendas, restaurantes y el reconocido Nikki Beach Marbella. Elviria es ideal para familias gracias a sus colegios, zonas verdes y amplia oferta de villas y apartamentos.
Los Monteros
Una de las comunidades de playa más prestigiosas de Marbella. Aquí se encuentran villas ultralujosas con acceso directo a la playa y seguridad 24/7. Es la elección preferida de compradores de alto nivel que buscan exclusividad.
Río Real
Conocido por su prestigioso Río Real Golf Club, esta zona ofrece una combinación de elegantes apartamentos y villas con vistas al mar y al golf. Tranquilo pero cercano al centro de Marbella, es perfecto para quienes buscan paz sin renunciar a la comodidad.
En conclusión, Marbella Este combina a la perfección la tranquilidad de la vida costera con la sofisticación del lujo en la Costa del Sol. Esta zona ofrece el equilibrio ideal entre confort, exclusividad y valor a largo plazo, convirtiéndola en una de las regiones más deseadas de Marbella para quienes buscan disfrutar lo mejor de la vida mediterránea.
